Page suivante
Page précédente
Plourivo (22860)

Maison 8 pièce(s) 5 chambre(s) 164 m²

2
76695 m²
2
Réf 8331

COMMEREUC IMMOBILIER PAIMPOL vous propose d'acquérir, sur la commune de PLOURIVO, à 3 kilomètres du port de Paimpol et du bord de mer, une maison d'habitation construite dans les années 1960 nichée au coeur d'un bois de plus de 7 hectares.

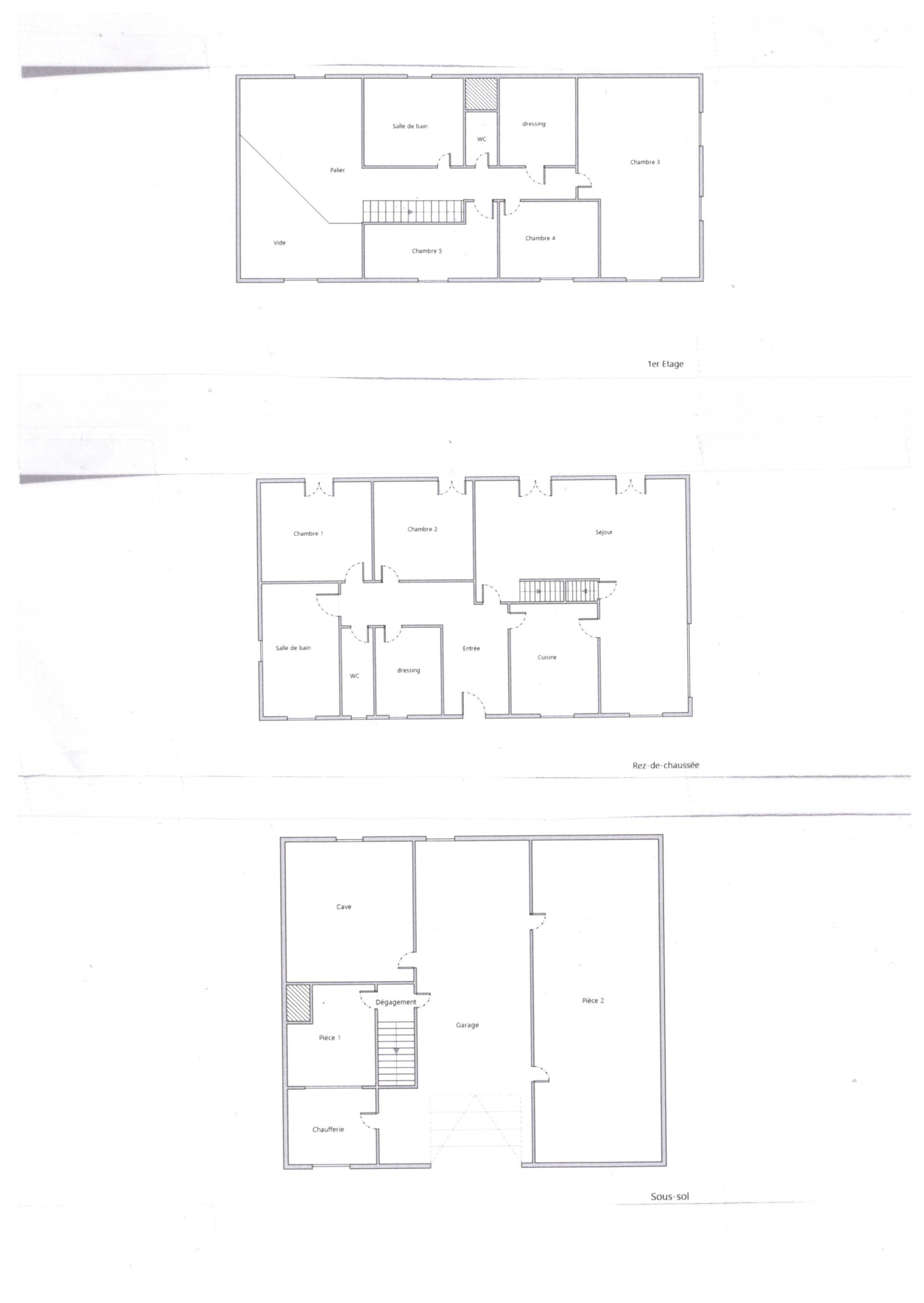
Cette maison édifiée sur sous-sol complet offre une surface habitable d'environ 164m².

Elle se compose en rez-de-chaussée : d'une entrée, d'une cuisine séparée, d'un vaste salon-séjour de 46m² avec cheminée et poutres apparentes, d'un bureau, d'une chambre, d'une salle de bain, d'un dressing et d'un WC. La pièce de vie s'ouvre sur une terrasse au coeur des bois.

A l'étage, une agréable mezzanine surplombe le salon et ouvre sur un couloir desservant 3 chambres dont une de 23m², un dressing, une salle de bain et un WC.

Au sous-sol : un garage, une cave, une chaufferie et un cellier.

Des travaux de rénovation sont à prévoir (électricité, isolation, huisseries, plomberie, chauffage...) pour faire de ce bien une agréable et spacieuse maison familiale.

L'assainissement individuel a été refait en 2017, il est conforme.

Les visites de ce bien se font uniquement sur rendez-vous auprès de l'agence COMMEREUC IMMOBILIER au 02.96.20.89.66.

Bilan énergétique

Diagnostics énergetiques
A propos de ce bien Caractéristiques de ce bien
  • Surface 164 m²
  • terrain 7,67 ha
  • séjour 46 m²
  • 5 chambre(s)
  • 2 salle(s) de bain
  • construit en 1960
  • cuisine séparée (semi-équipée)
  • 2 garage(s)
  • 2 niveau(x)
  • vue Campagne
  • terrasse
  • arboré

Composition

Composition de ce bien

Rez-de-chaussée

  • entrée 9.5 m²
  • cuisine 9.5 m²
  • salon/sejour 46.5 m²
  • chambre 12.5 m²
  • chambre 9.7 m²
  • salle de bain 6.5 m²
  • WC
  • dressing 3 m²

Etage 1

  • mezzanine 12 m²
  • chambre 10 m²
  • chambre 11 m²
  • chambre 23 m²
  • WC
  • dressing 4 m²
  • salle de bain 3.5 m²

Financier

Informations financières
Prix net vendeur 275 000 €
Taxe foncière annuelle 1 184 €

Autour du bien

Découvrez le quartier

Simulation

Calcul des mensualités
* Champs obligatoires
COMMÉREUC IMMOBILIER Agence