Page suivante
Page précédente
Plourivo (22860)

Maison 6 pièce(s) 4 chambre(s) 100 m²

2
1493 m²
1
Réf 8052

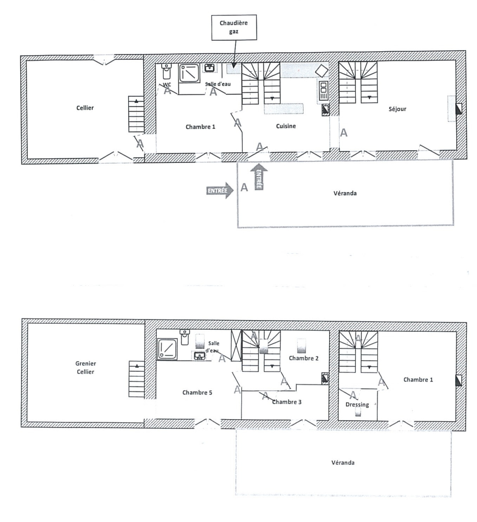
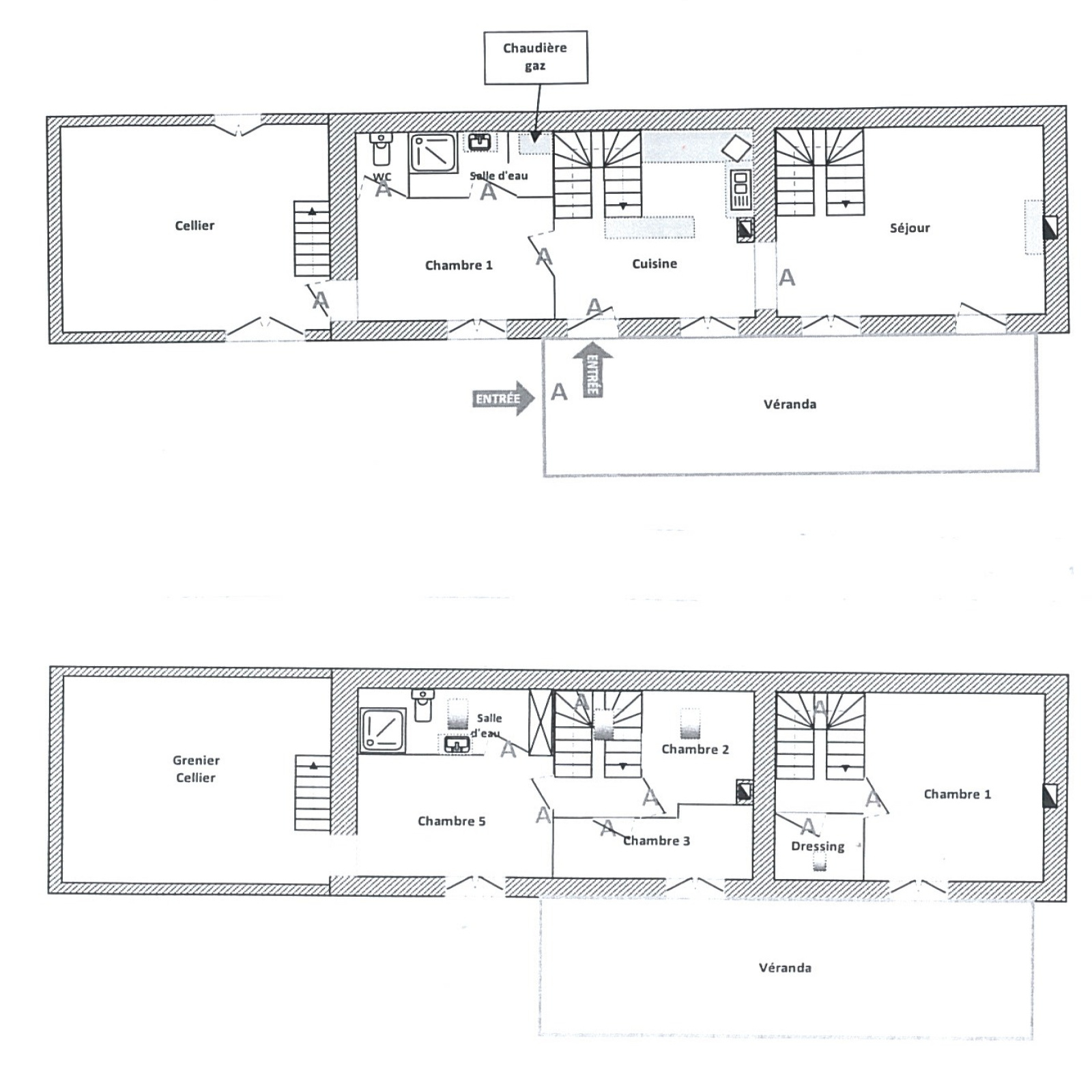
Votre agence immobilière COMMEREUC IMMOBILIER de PAIMPOL vous propose d'acheter une maison de 6 pièces située sur la commune de PLOURIVO, édifiée sur un jardin arboré de 1470 m² avec garage et dépendances. Comptez 5 km pour vous rendre à Paimpol, sur le port et dans les commerces du centre ville. Elle se compose au rez-de-chaussée d'une véranda, une pièce de vie avec cuisine américaine, un salon, une chambre, une salle de douche, un wc. A l'étage accessible par deux escaliers, d'un coté une chambre et un dressing, de l'autre côté deux chambres, une salle de douche, un wc. N'hésitez pas à contacter l'agence immobilière COMMEREUC IMMOBILIER pour en savoir plus.

Bilan énergétique

Diagnostics énergetiques
A propos de ce bien Caractéristiques de ce bien
  • Surface 100 m²
  • terrain 1 493 m²
  • séjour 20 m²
  • 4 chambre(s)
  • 2 salle(s) d'eau
  • construit en 1900
  • cuisine américaine (équipée)
  • Chauffage individuel : radiateur (gaz)
  • 1 garage(s)
  • 1 niveau(x)

Composition

Composition de ce bien

Rez-de-chaussée

  • véranda 17 m²
  • cuisine 20 m²
  • salon/sejour 20 m²
  • chambre 10.70 m²
  • Salle de douche 4 m²
  • WC 1.6 m²

Etage 1

  • chambre 12 m²
  • dressing 2.6 m²
  • chambre 9.5 m²
  • chambre 8.2 m²
  • bureau 5.5 m²
  • SDD WC

Financier

Informations financières
Prix net vendeur 165 000 €
Taxe foncière annuelle 643 €

Autour du bien

Découvrez le quartier

Simulation

Calcul des mensualités
* Champs obligatoires
COMMÉREUC IMMOBILIER Agence