0
Réf : 8121
Vendu

 Maison en pierres, au calme, sur la commune de PLOURIVO

Plourivo (22860)
214 900 €

A propos de ce bien

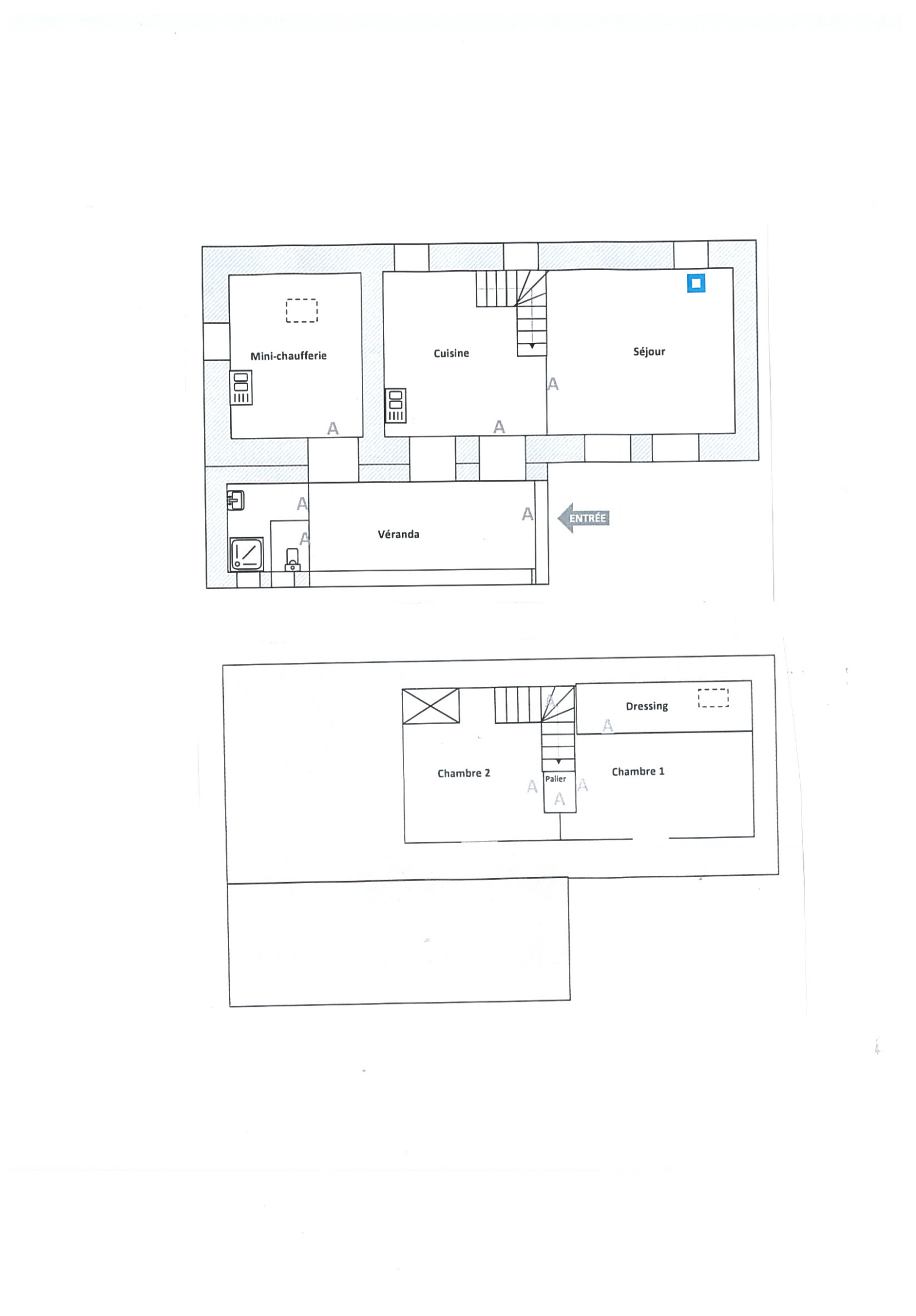
COMMEREUC IMMOBILIER vous propose, en exclusivité, sur la commune de PLOURIVO, à 4 kilomètres au sud de PAIMPOL, une charmante maison en pierres d'une surface habitable d'environ 80 m², édifiée sur un terrain arboré de 1.684 m². Elle comprend, au rez de chaussée, une véranda, un salon/séjour avec une cheminée, une cuisiné équipée, une salle d'eau ainsi qu'un WC séparé. De la véranda, on accède à un vaste appenti à usage de chaufferie et de buanderie. A l'étage, un pallier dessert deux chambres.
Le terrain se compose d'un jardin clos et d'un verger. Une dépendance de 30 m² complète l'ensemble. Vous êtes à la recherche d'une résidence secondaire au calme, contactez sans tarder l'agence COMMEREUC IMMOBILIER de PAIMPOL au 02 96 20 89 66

découvrir le bien

Descriptif du bien

TRAD_PAMPERO_Caracteristique Valeurs
Code postal 22860
Surface habitable (m²) 80 m²
surface terrain 1 684 m²
Nombre de chambre(s) 2
Nombre de pièces 4
Nombre de niveaux 1
Vue Campagne
TRAD_PAMPERO_Caracteristique Valeurs
Nb de salle d'eau 1
Cuisine Américaine
Type de cuisine Equipée
Mode de chauffage Bois, Fioul
Type de chauffage Cheminée, Convecteur
Format de chauffage Individuel, Central
Sous/sol SANS
Exposition Sud-Est
Année de construction 1900
Terrain arboré OUI
TRAD_PAMPERO_Caracteristique Valeurs
Prix de vente honoraires TTC inclus 214 900 €
Prix de vente honoraires TTC exclus 205 000 €
Honoraires TTC à la charge acquéreur 4,83 %
Taxe foncière annuelle 540 €