0
Réf : 7514-1374
Vendu

 

Paimpol (22500)
158 250 €

A propos de ce bien

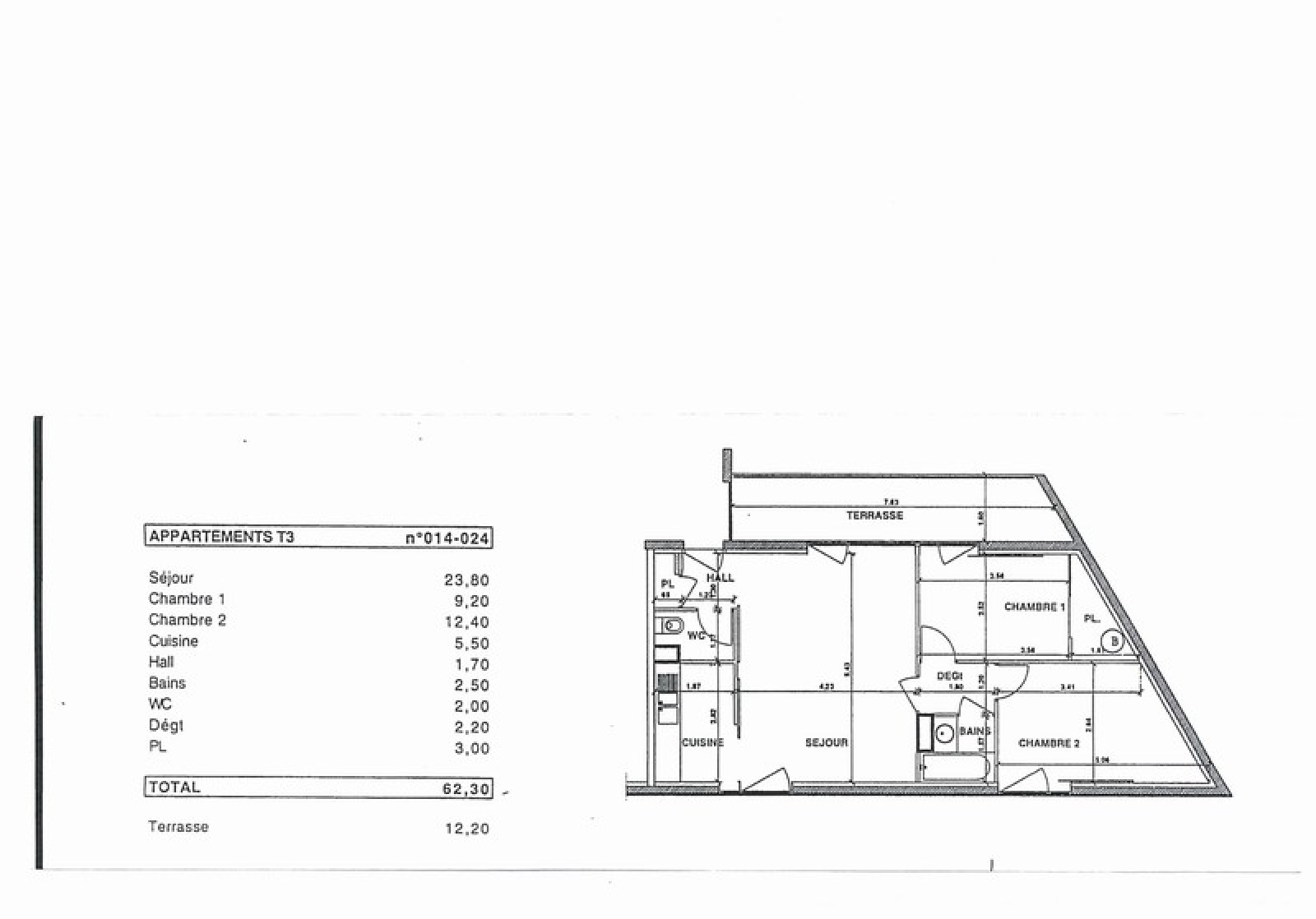
COMMEREUC IMMOBILIER vous propose EN EXCLUSIVITE à PAIMPOL, en plein centre ville, dans une résidence de standing sécurisée avec ascenseur, un appartement de 3 pièces au premier étage de la résidence. Il comprend une pièce de vie donnant sur un balcon à l'ouest, une cuisine en partie aménagée ouverte sur la pièce de vie, deux chambres dont une, celle avec un grand placard, donne sur le balcon à l'ouest, une salle de bains, un WC. Un emplacement de parking sécurisé dans la résidence, ainsi qu'une cave. Immeuble soumis à la copropriété. 21 lots principaux sur une seule entrée. ,

Descriptif du bien

TRAD_PAMPERO_Caracteristique Valeurs
Code postal 22500
Surface habitable (m²) 60,56 m²
Nombre de chambre(s) 2
Nombre de pièces 3
Etage 1
Ascenseur OUI
TRAD_PAMPERO_Caracteristique Valeurs
Nb de salle de bains 1
Mode de chauffage Electrique
Type de chauffage Radiateur
Format de chauffage Individuel
Cave OUI
TRAD_PAMPERO_Caracteristique Valeurs
Copropriété OUI
nombre de lots 21
Quote Part annuelle des charges 1 216 €
TRAD_PAMPERO_Caracteristique Valeurs
Prix de vente honoraires TTC inclus 158 250 €
Prix de vente honoraires TTC exclus 150 000 €
Honoraires TTC à la charge acquéreur 5,5 %
Taxe foncière annuelle 697 €